SGK ve vergi borcuna karşılık okul! AKP'li belediye borcunu Muhsin Yazıcıoğlu'nun adını satarak ödeyecek!
AKP’li Sancaktepe Belediyesi, devlete olan SGK ve vergi borcunu, Muhsin Yazıcıoğlu İmam Hatip Ortaokulu’nun bulunduğu araziyi devlete satarak kapatacak.
Odatv’nin haberine göre; AKP’li Sancaktepe Belediyesi, devlete olan SGK ve vergi borcunu, Muhsin Yazıcıoğlu İmam Hatip Ortaokulu’nun bulunduğu araziyi devlete satarak kapatacak. Söz konusu arazi üzerinde okulun yanı sıra, Çekmeköy-Sancaktepe-Sultanbeyli Metro hattının şaft tünelleri de bulunuyor.
AKP’li belediyeler üzerinde okul, cami bulunan arazileri ve hizmet alanı olarak planlanmış yerleri vergi borçlarına karşılık devlete satmayı alışkanlık haline getirdi. Son olarak Sancaktepe Belediyesi de vergi ve SGK borçlarını kapatmak için bu yola başvurdu.
Sancaktepe Belediyesi ve onun bir kuruluşu olan SAFAŞ İnşaat Turizm Çevre Hizmetleri ve Organizasyon San. ve Tic. Ltd. Şirketi’nin borçlarını kapatmak için Belediye Meclisi’ne bir teklif sunuldu. AKP’li Sancaktepe Belediye yönetimi Belediye Meclisi’ne sunduğu söz konusu teklife göre, Belediye ve şirketinin borcuna karşılık, “İstanbul Sancaktepe Muhsin Yazıcıoğlu İmam Hatip Ortaokulu”nun bulunduğu araziyi devlete verecek. Belediye söz konusu mahsuplaşmanın yasal dayanağını şöyle belirtti:
“Amme Alacaklarının Tahsil Usulü Hakkındaki Kanunun geçici 8. Maddesine göre Belediyelerin devlete ait olan ve bu kanun kapsamına giren borçlarına karşılık, mülkiyeti bu idarelere ait ve üzerinde herhangi bir takyidat bulunmayan taşınmazların Maliye Bakanlığınca satın alınabileceği belirtilmiş olup, bu sebeple Belediyemiz sınırları içerisinde adımıza kayıtlı gayrimenkullerden diğer kamu kurum ve kuruluşlarca tahsis amaçlı verilmiş olan veya işgal durumunda olanlar ile daha sonra Belediyemizce kullanılması düşünülmeyen gayrimenkullerin işbu kanun gereği gerekli değerlendirmelerin yapılması talep edilmektedir.”
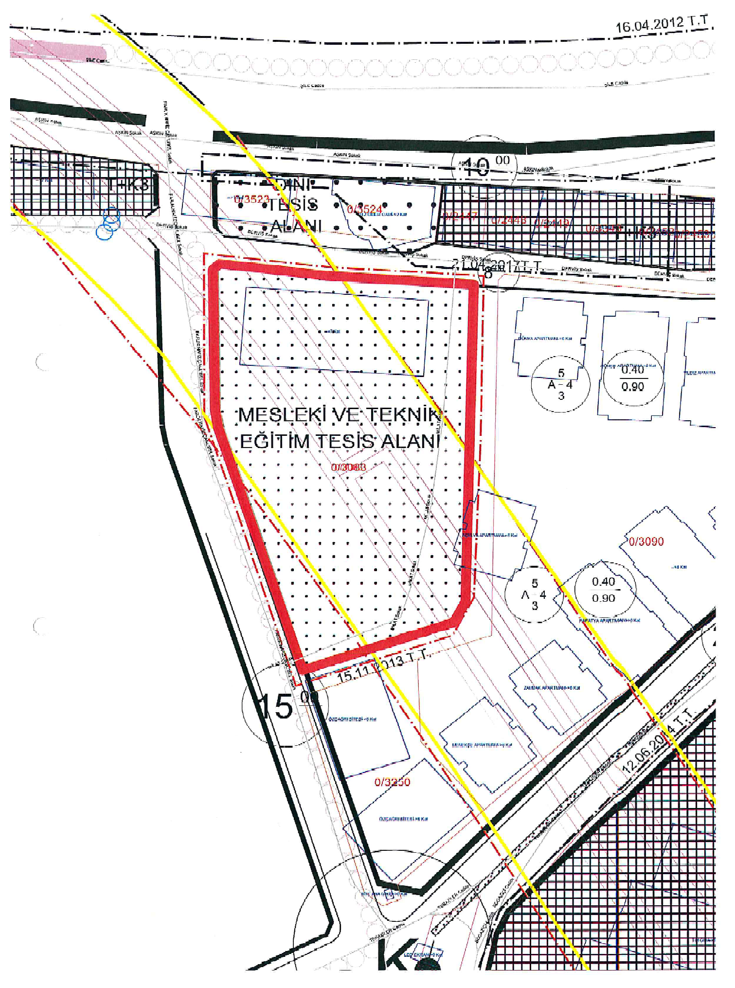
Vergi borcuna karşılık devlete satılacak olan, Meclis Mahallesi’nde bulunan(Çamlık) 3083 nolu parsel, 7 bin 370 metrekare büyüklüğünde. 26 derslikli 6 katlı İmam Hatip okul binası dışında söz konusu arazide iki adet metro hattı şaftı bulunuyor.
Sancaktepe Belediye Meclisi’nin söz konusu teklifi Perşembe günü görüşülmesi bekleniyor.
ANADOLU LİSESİ OLARAK YAPILDI İMAM HATİP OLDU
Sancaktepe Belediyesi’nin borçlarına karşılık devlete satacağı arazi üzerindeki okul inşaatı 2017 yılında ihale edildi. İstanbul Milli Eğitim Müdürlüğü tarafından yapılan ihale ile ilgili okula asılan tabelada, “İstanbul Sancaktepe 3038 Parsel 24 Derslikli Anadolu Lisesi” yazılmıştı. Ancak Anadolu Lisesi olarak yapılan binada, Muhsin Yazıcıoğlu İmam Hatip Ortaokulu hizmet veriyor.
Anadolu Lisesi 22 Aralık 2017 tarihinde ihale edildi. İhaleyi Atabey Denizcilik ve İnşaat Tic. Ltd. Şirketi 6 milyon 600 bin TL’ye almıştı. Firmanın sahibi Ömer Rasim Atabey’nin, AKP’nin önde gelen isimleriyle çektirdiği fotoğraflar kamuoyuna mal olmuş durumda.








HABERE YORUM KAT
Türkçe karakter kullanılmayan ve büyük harflerle yazılmış yorumlar onaylanmamaktadır.